On December 7, 2022, the European Union Official Journal OJ officially issued the revised Directive (EU) 2022/2380 on universal chargers to supplement the specific implementation requirements of 3.3 (a) of the RED Directive 2014/53/EU on universal charging interfaces.

The revised directive covers the following 13 categories of wireless devices
◆ Handheld mobile phones
◆ Tablets
◆ Digital camera
◆ Headphones
◆ Headsets
◆ Handheld videogame consoles
◆ Portable speakers
◆ E-readers
◆ Keyboard
◆ Mice
◆ Portable navigation systems
◆ Earplugs
◆ Laptops
The new directive will be enforced in all EU member states from December 28, 2024. Among them, the requirements for notebook computer equipment will be enforced on December 28, 2026. New equipment entering the EU market after the mandatory date should meet the requirements of the Directive.
Main contents of the new directive
1. Article 3.3 (a) of the original directive was amended, and Article 3.4 was added to supplement the specific implementation requirements for the universal charging interface.
2. Updated the responsibilities and obligations of manufacturers, importers, distributors and other economic operators
3. As long as the above 13 types of devices can be charged through cables, they are required to be equipped with USB Type-C conforming to EN IEC 62680-1-3:2021 ? Charging interface, and can use charging cables that meet the same standard for charging. The equipment that supports fast charging shall comply with the USB PD (Power Delivery) protocol of EN IEC 62680-1-2:2021 standard.
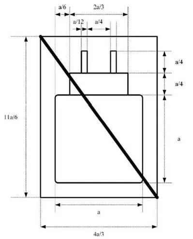
4. When wireless products are sold and circulated in the EU market, you can choose whether to have a charger and specify the instructions. The type and configuration of the charger should be reflected in the outer package or label. The information should be displayed in a readable and visible way. The following figure is a schematic diagram of the label (which needs to be scaled equally), where a should not be less than 7mm.
The product is equipped with a charger:

The product is not equipped with a charger:

5. The charging specification shall be reflected in the label, and the following figure is the schematic diagram of the label (to be scaled equally), where a shall not be less than 7mm.

Note: "XX" is the number corresponding to the minimum power required for wireless device charging, which determines the minimum power required for wireless device charging by the charger; "YY" is the number of the maximum power required by the wireless device to achieve the maximum charging speed, which determines the minimum power required by the charger to achieve the maximum charging speed; When the charger supports USB PD (charging voltage greater than 5V, current greater than 3A or power greater than 15W), the abbreviation "USB PD" shall be displayed.
Warm tips
ZRLK18 focused on the testing and certification of consumer electronic and electrical products, always paying attention to the changes of laws and regulations in various countries, and providing one-stop testing and certification services for customers to ensure that your products quickly enter the target market. If you want to know more about the requirements for testing and certification of consumer electronic and electrical products, or if the above products need to be tested and certified, please feel free to contact us, and our engineers will serve you at the first time!